Forventet matrial pakke:

Fra 1.290.000 kr

Forventet ferdig oppsatt:

Kontakt for pris

Forventet nøkkelklart:

Fra 2.990.000 kr

Forventet byggetid:

10-13 uker

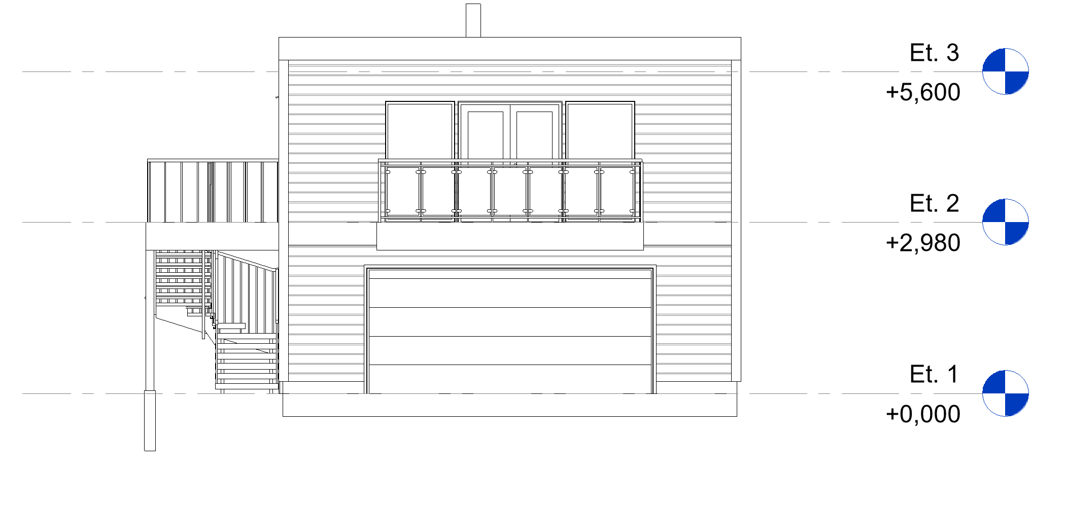
Moderne dobbelgarasje med komplett leilighet i 2. etasje.

Praktisk og moderne garasje med en arealeffektiv 2-roms leilighet over. Perfekt som utleieenhet, generasjonsdel eller ekstra boareal. Store vinduer, balkong og egen inngang gir en lys og funksjonell bolig. Garasjen har god plass til to biler og separat teknisk rom.

Denne modellen kombinerer en romslig dobbelgarasje med en fullverdig leilighet på 2. etasje. Leiligheten har to soverom, bad og åpen stue/kjøkken-løsning med godt lysinnslipp. Utvendig trapp gir separat adkomst, og balkongen skaper en fin uteplass. En smart løsning for deg som ønsker mulighet for utleie, gjesteplass eller ekstra boareal — samtidig som du får en moderne og vedlikeholdsvennlig garasje.

Andre prosjekter

Alle prosjekter

La oss ta en prat i dag

Få kontroll på ditt byggeprosjekt og lær hvordan du kan spare både tid og penger med Byggsmart Kompetanse.